3 chambres
Terrain de 804 m²
Structure en bois certifiée

UN CADRE IDYLLIQUE À CAILLAC : Votre maison 90 m² (3 chambres) sur 804 m² de terrain arboré.


🌳 Le terrain : un cadre idyllique & un potentiel unique

Découvrez ce superbe terrain constructible de 804 m² à Caillac, un véritable havre de paix arboré. Avec ses arbres majestueux, il offre un environnement calme et bucolique, idéal pour bâtir la maison de vos rêves.

Atouts clés du terrain : végétation riche, surface optimale : 804 m² pour une belle maison avec jardin, sans vis-à-vis, calme absolu mais proche de Cahors.

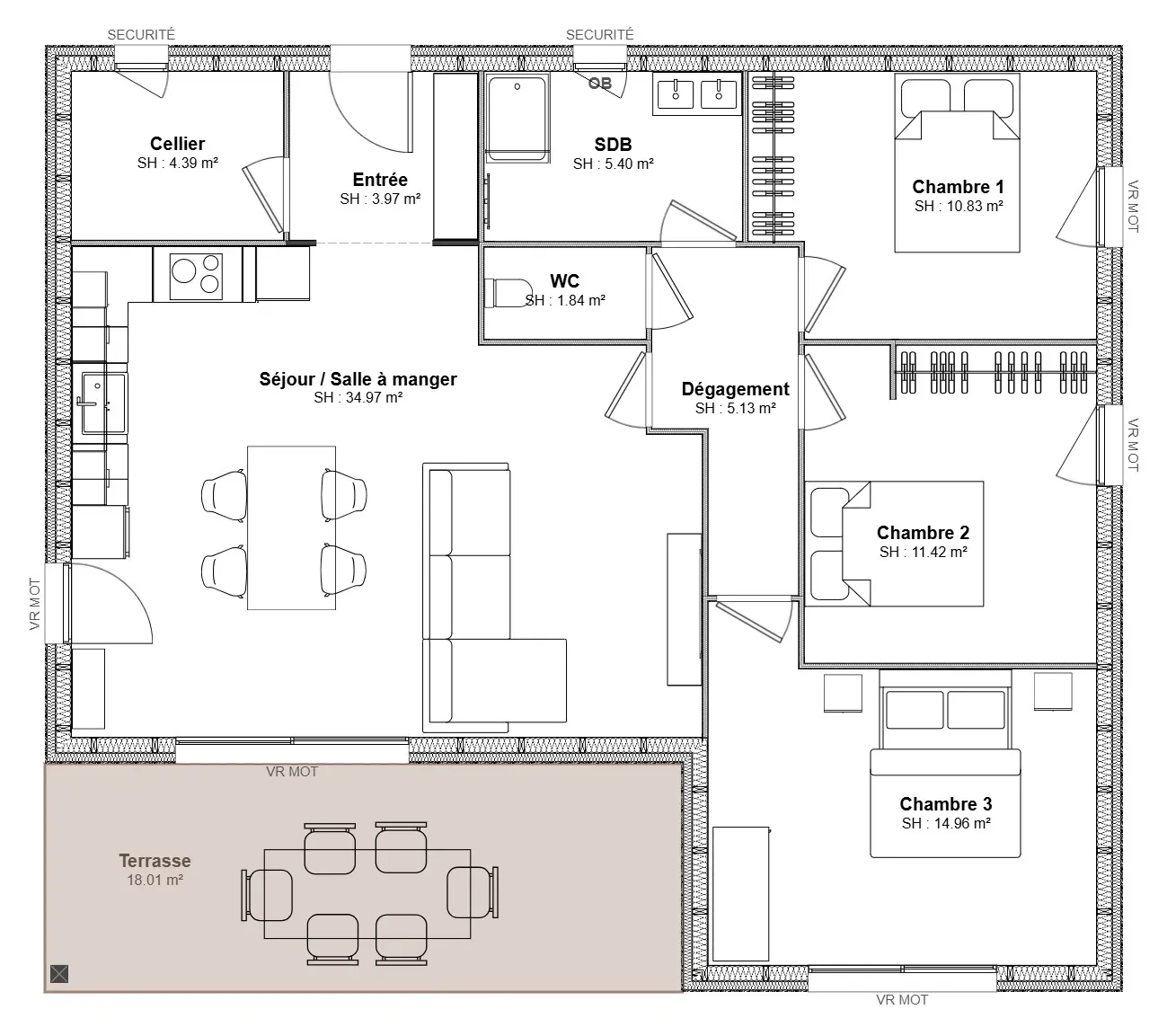
🏠 La maison de 90 m² à personnaliser

Pour s'intégrer parfaitement à ce cadre verdoyant, Maisons Doréa vous propose cette maison de 90 m², à la fois fonctionnel et chaleureux, parfaitement optimisé pour la vie de famille.

Un agencement pensé pour vous :

- Une pièce de vie lumineuse de 35 m² (Séjour / Salle à manger) avec sa cuisine ouverte, pensée pour la convivialité.

- Un accès direct depuis le salon à une belle terrasse de 18 m², idéale pour profiter de votre jardin arboré.

- Un cellier pratique de 4.3 m², attenant à la cuisine, pour un maximum de rangements.

- Un coin nuit bien séparé pour préserver la tranquillité de chacun, comprenant 3 chambres confortables (dont une grande chambre de près de 15 m²).

- Une salle de bain familiale et des WC séparés.

❤️Parfait pour les amoureux de la nature et les familles ! Ce projet "clé en main" combine un terrain au charme unique à Caillac avec une maison neuve, fonctionnelle et économe en énergie (conforme RE2020), équipée d'un chauffage par système multisplit pour un confort optimal en toute saison.

N'attendez plus pour votre projet : contactez Maisons Doréa Cahors !
Constructeur de maisons à Cahors
Emmanuel AMARAL
Emmanuel AMARAL
+33 5 65 31 12 87
1245 avenue Saint-Éxupéry
46230 - Cieurac
Parlons de votre projet !
Je suis intéressé