Votre futur chez-vous : confort, design et sérénité à Gramat
Découvrez une réalisation haut de gamme où chaque mètre carré a été pensé pour votre bien-être. Avec sa vaste pièce de vie ouverte sur l'extérieur et ses prestations soignées, cette maison est l'écrin parfait pour votre famille, à deux pas des commodités de Gramat.
Situé dans un lotissement calme et déjà borné, ce terrain de 723 m² (avec possibilité de parcelles plus grandes selon vos besoins) est entièrement viabilisé et raccordé au tout-à-l'égout. L'étude de sol G1 est déjà réalisée, vous garantissant un démarrage de chantier rapide et sans surprise.
L'architecture de notre maison se distingue par ses lignes sobres et contemporaines, soulignées par un toit plat et de larges ouvertures.
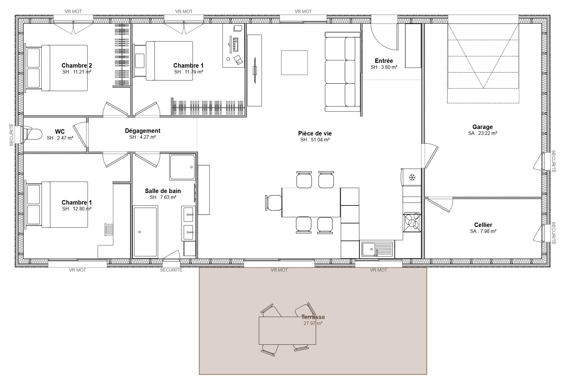
- Espace de vie : Une magnifique pièce de vie de plus de 51 m² baignée de lumière, comprenant une cuisine ouverte et un vaste salon-séjour.
- Espace nuit : Un dégagement dessert 3 belles chambres (allant de 11 m² à près de 13 m²), une salle de bain spacieuse de 7,60 m² et un WC indépendant.
- Un cellier attenant à la cuisine pour plus de rangement et un grand garage de 23 m² avec accès direct intérieur.
A l'extérieur profitez d'une terrasse généreuse idéale pour vos repas d'été face au jardin.
En choisissant Maisons Doréa Cahors, vous bénéficiez d'un accompagnement personnalisé et de toutes les garanties du contrat de construction (CCMI) pour bâtir votre patrimoine en toute sécurité.
Contactez dès maintenant votre conseiller Maisons Doréa à Cahors pour une étude gratuite de votre projet.
Situé dans un lotissement calme et déjà borné, ce terrain de 723 m² (avec possibilité de parcelles plus grandes selon vos besoins) est entièrement viabilisé et raccordé au tout-à-l'égout. L'étude de sol G1 est déjà réalisée, vous garantissant un démarrage de chantier rapide et sans surprise.
L'architecture de notre maison se distingue par ses lignes sobres et contemporaines, soulignées par un toit plat et de larges ouvertures.
- Espace de vie : Une magnifique pièce de vie de plus de 51 m² baignée de lumière, comprenant une cuisine ouverte et un vaste salon-séjour.
- Espace nuit : Un dégagement dessert 3 belles chambres (allant de 11 m² à près de 13 m²), une salle de bain spacieuse de 7,60 m² et un WC indépendant.
- Un cellier attenant à la cuisine pour plus de rangement et un grand garage de 23 m² avec accès direct intérieur.
A l'extérieur profitez d'une terrasse généreuse idéale pour vos repas d'été face au jardin.
En choisissant Maisons Doréa Cahors, vous bénéficiez d'un accompagnement personnalisé et de toutes les garanties du contrat de construction (CCMI) pour bâtir votre patrimoine en toute sécurité.
Contactez dès maintenant votre conseiller Maisons Doréa à Cahors pour une étude gratuite de votre projet.
Constructeur de maisons à Cahors
Emmanuel AMARAL
+33 5 65 31 12 87
1245 avenue Saint-Éxupéry
46230 - Cieurac
46230 - Cieurac