Un cadre de vie idéal à Cahors : Votre maison design 105 m² et son terrain de 1330 m².
Situé sur les hauteurs de Cahors, dans un quartier calme, ce magnifique terrain de 1330 m² n'attend que votre projet.
Ce terrain est une opportunité rare : 1330 m², légèrement pentu, idéal pour une intégration paysagère réussie.
Maisons Doréa vous propose d'y construire cette superbe villa contemporaine à toit plat, conçue pour allier esthétique, confort et fonctionnalité.
Son agencement optimisé de 105 m² habitables est tourné vers l'extérieur :
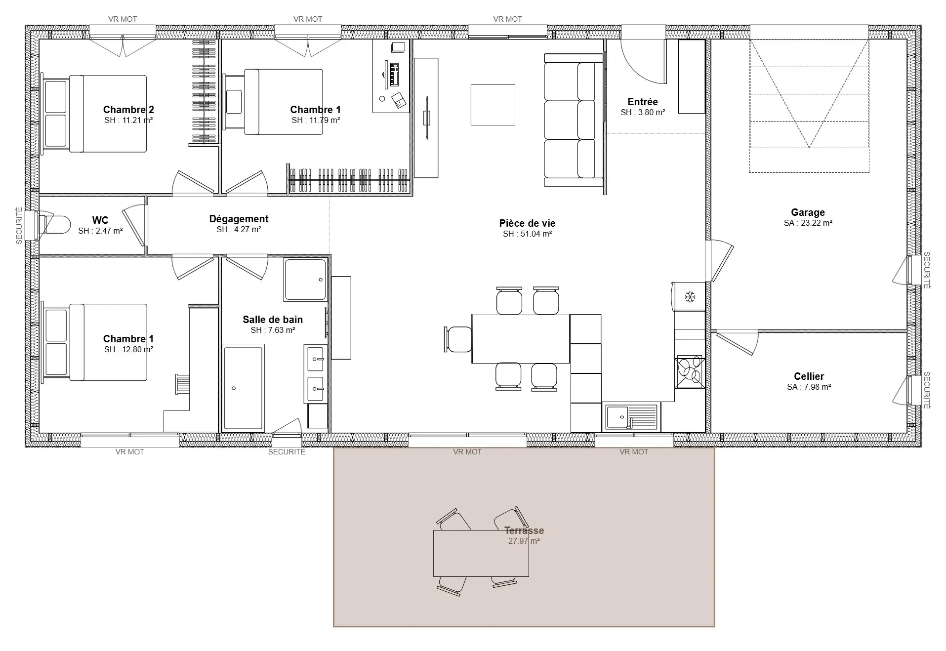
✅ Une pièce de vie spectaculaire de 51 m², véritable cœur de la maison. Baignée de lumière, elle s'ouvre généreusement par une large baie vitrée sur la terrasse extérieure de 27 m². C'est l'espace idéal pour vos repas en plein air, pouvant être agrémenté d'une pergola design. L'espace intérieur intègre une cuisine ouverte, une salle à manger et un salon cosy.
✅ Un cellier attenant de 8 m², un atout rangement indispensable, faisant le lien direct entre la cuisine et le garage intégré de 23 m².
✅ Un coin nuit parfaitement isolé, desservi par un dégagement, comprenant 3 belles chambres (12.8 m², 12 m² et 11.2 m²) avec emplacements pour placards.
✅ Une grande salle de bain familiale de 7.6 m² et un WC séparé.
Cette maison propose des prestations de qualité pour un confort optimal. Elle respecte les dernières normes (RE2020) pour des performances énergétiques maximales. Pour votre confort, elle est équipée d'un système de chauffage gainable, une solution moderne, invisible (pas de radiateurs) et silencieuse, qui assure une chaleur douce et homogène dans toute la maison.
Un projet "clé en main" alliant un terrain rare dans un secteur recherché et une maison neuve, performante et parfaitement ouverte sur son jardin.
Ce terrain est une opportunité rare : 1330 m², légèrement pentu, idéal pour une intégration paysagère réussie.
Maisons Doréa vous propose d'y construire cette superbe villa contemporaine à toit plat, conçue pour allier esthétique, confort et fonctionnalité.
Son agencement optimisé de 105 m² habitables est tourné vers l'extérieur :
✅ Une pièce de vie spectaculaire de 51 m², véritable cœur de la maison. Baignée de lumière, elle s'ouvre généreusement par une large baie vitrée sur la terrasse extérieure de 27 m². C'est l'espace idéal pour vos repas en plein air, pouvant être agrémenté d'une pergola design. L'espace intérieur intègre une cuisine ouverte, une salle à manger et un salon cosy.
✅ Un cellier attenant de 8 m², un atout rangement indispensable, faisant le lien direct entre la cuisine et le garage intégré de 23 m².
✅ Un coin nuit parfaitement isolé, desservi par un dégagement, comprenant 3 belles chambres (12.8 m², 12 m² et 11.2 m²) avec emplacements pour placards.
✅ Une grande salle de bain familiale de 7.6 m² et un WC séparé.
Cette maison propose des prestations de qualité pour un confort optimal. Elle respecte les dernières normes (RE2020) pour des performances énergétiques maximales. Pour votre confort, elle est équipée d'un système de chauffage gainable, une solution moderne, invisible (pas de radiateurs) et silencieuse, qui assure une chaleur douce et homogène dans toute la maison.
Un projet "clé en main" alliant un terrain rare dans un secteur recherché et une maison neuve, performante et parfaitement ouverte sur son jardin.
Constructeur de maisons à Cahors
Emmanuel AMARAL
+33 5 65 31 12 87
1245 avenue Saint-Éxupéry
46230 - Cieurac
46230 - Cieurac