VUE IMPRENABLE ET CONFORT MODERNE : Votre maison de 100 m² et son terrain dominant de 6341 m² à Molières.
🌳 Idéalement situé dans le Tarn-et-Garonne (82), au cœur d'un secteur résidentiel recherché entre Caussade et Montauban, ce terrain se trouve sur les hauteurs de Molières. Vous profitez d'un cadre de vie exceptionnel dans les paysages vallonnés du Quercy Blanc, tout en restant parfaitement connecté aux grands axes (A20), à mi-chemin entre les pôles économiques de Montauban et Cahors.
Saisissez l'opportunité unique de construire la maison de vos rêves dans ce cadre idyllique. Ce magnifique terrain de 6341 m² offre une vue imprenable et dominante sur les paysages vallonnés de Mirabel.
Atouts clés du terrain :
- Vue panoramique et dégagée sur les collines, sans vis-à-vis.
- Grand terrain de 6341 m², dont 2500 m² constructibles.
- Certificat d'urbanisme obtenu pour la construction d'une ou plusieurs maisons avec piscine.
- Idéal pour un projet de résidence principale ou secondaire dans un cadre privilégié.
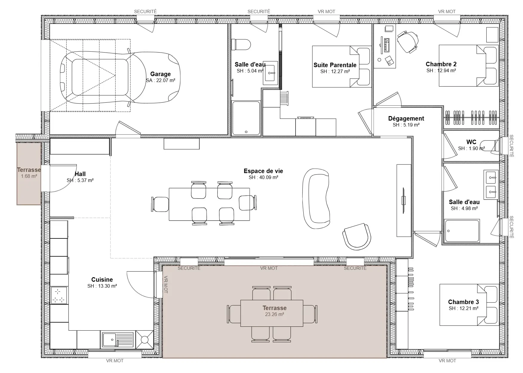
🏠 Pour s'implanter parfaitement sur ce terrain et profiter de la vue, nous vous proposons cette maison fonctionnelle et lumineuse, conçue pour la vie de famille.
Un agencement pensé pour vous :
- Un grand espace de vie lumineux de plus de 40 m², véritable cœur de la maison, tourné vers la vue et la terrasse.
- Une cuisine fonctionnelle de 13 m², attenante au hall d'entrée.
- Un accès direct à une magnifique terrasse couverte de plus de 23 m², un véritable salon d'été pour profiter du panorama en toute saison.
- Un garage intégré de 22 m² communiquant avec l'entrée.
- Un coin nuit parfaitement conçu comprenant 3 chambres, dont une suite parentale (chambre + salle d'eau privative).
- Une seconde salle d'eau et un WC séparé pour les enfants ou les invités.
Le confort ultime : le plafond chauffant et rafraîchissant ! Cette maison est équipée d'un système de chauffage par plafond chauffant, une technologie de pointe pour un confort absolu en hiver (chaleur douce, homogène et rayonnante) et qui offre une fonction rafraîchissante pour un bien-être incomparable en été.
❤️ Ne manquez pas cette occasion rare sur le secteur ! Un projet combinant un terrain d'exception et une maison au confort technologique moderne.
Saisissez l'opportunité unique de construire la maison de vos rêves dans ce cadre idyllique. Ce magnifique terrain de 6341 m² offre une vue imprenable et dominante sur les paysages vallonnés de Mirabel.
Atouts clés du terrain :
- Vue panoramique et dégagée sur les collines, sans vis-à-vis.
- Grand terrain de 6341 m², dont 2500 m² constructibles.
- Certificat d'urbanisme obtenu pour la construction d'une ou plusieurs maisons avec piscine.
- Idéal pour un projet de résidence principale ou secondaire dans un cadre privilégié.
🏠 Pour s'implanter parfaitement sur ce terrain et profiter de la vue, nous vous proposons cette maison fonctionnelle et lumineuse, conçue pour la vie de famille.
Un agencement pensé pour vous :
- Un grand espace de vie lumineux de plus de 40 m², véritable cœur de la maison, tourné vers la vue et la terrasse.
- Une cuisine fonctionnelle de 13 m², attenante au hall d'entrée.
- Un accès direct à une magnifique terrasse couverte de plus de 23 m², un véritable salon d'été pour profiter du panorama en toute saison.
- Un garage intégré de 22 m² communiquant avec l'entrée.
- Un coin nuit parfaitement conçu comprenant 3 chambres, dont une suite parentale (chambre + salle d'eau privative).
- Une seconde salle d'eau et un WC séparé pour les enfants ou les invités.
Le confort ultime : le plafond chauffant et rafraîchissant ! Cette maison est équipée d'un système de chauffage par plafond chauffant, une technologie de pointe pour un confort absolu en hiver (chaleur douce, homogène et rayonnante) et qui offre une fonction rafraîchissante pour un bien-être incomparable en été.
❤️ Ne manquez pas cette occasion rare sur le secteur ! Un projet combinant un terrain d'exception et une maison au confort technologique moderne.
Constructeur de maisons à Cahors
Emmanuel AMARAL
+33 5 65 31 12 87
1245 avenue Saint-Éxupéry
46230 - Cieurac
46230 - Cieurac